| نام پروژه | کلینیک دندانپزشکی باران |
| مدل پروژه | ساخت و ساز و عمرانی |
| تاریخ شروع | ۱۴۰۳/۰۳/۰۸ |
| تاریخ پایان (تقریبی) | - |
| تاریخ پایان (واقعی) | - |
| کدپستی | - |
| آدرس | استان هرمزگان، بندرعباس، اتوتاج، سیدجمالالدین اسدآبادی |
| توضیحات | دکتر اسما پرمر و دکتر فریبا جوانی |
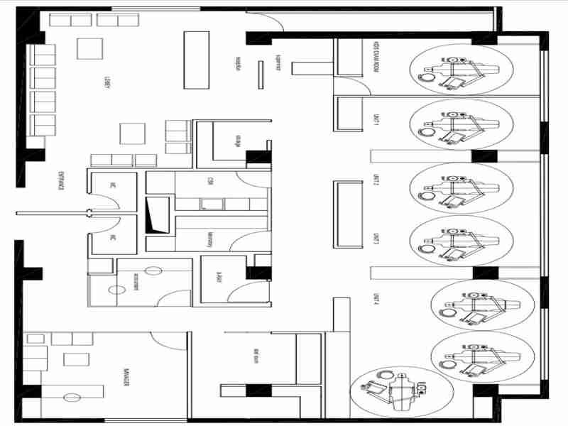
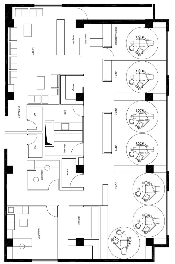
| نقشه |
|
| ردیف | اسم وظیفه | تاریخ شروع | تاریخ پایان (تقریبی) | تاریخ پایان (واقعی) |
|---|---|---|---|---|
| 1 | آیتم های اجرایی | ۱۴۰۰/۰۱/۰۱ | ۱۴۰۳/۰۳/۰۸ | - |
| 2 | طراحی | ۱۴۰۳/۰۳/۰۸ | ۱۳۹۸/۱۲/۲۹ | - |
| ردیف | اسم وظیفه | وزن (بر اساس ساختارشکست) | وزن (بر اساس مبلغ) | میانگین وزنی وظایف |
|---|---|---|---|---|
| 1 | آیتم های اجرایی | 66.67 | 0 | 33.34 |
| 2 | طراحی | 33.33 | 0 | 16.66 |
| ردیف | اسم وظیفه | تاریخ شروع | تاریخ پایان (تقریبی) | تاریخ پایان (واقعی) | درصد انجام شده(واقعی) | انحراف از معیار |
|---|---|---|---|---|---|---|
| 1 | آیتم های اجرایی | ۱۴۰۰/۰۱/۰۱ | ۱۴۰۳/۰۳/۰۸ | - | 0.0 |
-100.0 |
| 2 | طراحی | ۱۴۰۳/۰۳/۰۸ | ۱۳۹۸/۱۲/۲۹ | - | 0.0 |
-100.0 |