مشخصات پروژه

نام پروژه درمانگاه شبانه روزی ایران زمین
مدل پروژه ساخت و ساز و عمرانی
تاریخ شروع ۱۴۰۳/۰۴/۰۳
تاریخ پایان (تقریبی) ۱۴۰۳/۰۹/۳۰
تاریخ پایان (واقعی) -
کدپستی -
آدرس استان هرمزگان، بندرعباس، آیت الله غفاری، بلوار مادر، بعثت
توضیحات -
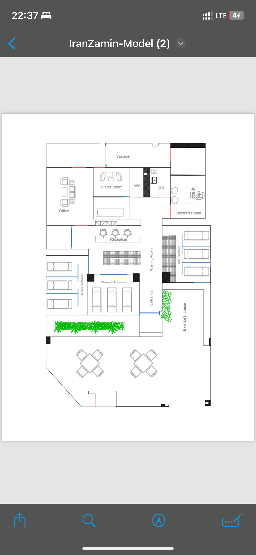
نقشه

جدول زمان بندی ساختارشکست

ردیف اسم وظیفه تاریخ شروع تاریخ پایان (تقریبی) تاریخ پایان (واقعی)
1 طراحی ۱۴۰۳/۰۴/۰۳ ۱۴۰۳/۰۴/۳۱ -
2 اجرا ۱۴۰۳/۰۶/۰۱ ۱۴۰۳/۰۹/۳۰ -

نمودار زمانی وظایف

نمودار زمانی وظایف

وزن وظیفه ها

ردیف اسم وظیفه وزن (بر اساس ساختارشکست) وزن (بر اساس مبلغ) میانگین وزنی وظایف
1 طراحی 64.71 0 32.35
2 اجرا 35.29 0 17.64

نمودار وزن وظیفه ها

نمودار وزن وظیفه ها

درصد پیشرفت پروژه

ردیف اسم وظیفه تاریخ شروع تاریخ پایان (تقریبی) تاریخ پایان (واقعی) درصد انجام شده(واقعی) انحراف از معیار
1 طراحی ۱۴۰۳/۰۴/۰۳ ۱۴۰۳/۰۴/۳۱ - 72.73

-36.36

2 اجرا ۱۴۰۳/۰۶/۰۱ ۱۴۰۳/۰۹/۳۰ - 33.33

-66.67

اهم فعالیت های انجام شده

۱۴۰۳/۰۴/۰۳
وظیفه : طراحی ۱۸:۴۷
ساختار شکست: بازدید 1 محرابی-زینل پور ساعت 10 صبح یکشنبه
۱۴۰۳/۰۴/۱۱
وظیفه : طراحی ۲۲:۴۷
ساختار شکست: برداشت پلان-عباس پور-زینل پور
۱۴۰۳/۰۴/۱۳
وظیفه : طراحی ۱۲:۳۹
ساختار شکست: پلان اولیه
وظیفه : طراحی ۱۵:۵۷
ساختار شکست: جلسه حضوری بررسی جانمایی و تکمیل پرسشنامه-دکتر توسلی و دکتر کریمی-محرابی و زینل پور
۱۴۰۳/۰۴/۱۶
وظیفه : طراحی ۱۹:۳۲
ساختار شکست: ارسال قرارداد طراحی-زینل پور
۱۴۰۳/۰۴/۱۹
وظیفه : طراحی ۲۲:۳۲
ساختار شکست: بررسی نقشه جانمایی پیشنهادی تیم بساز
وظیفه : طراحی ۲۲:۳۲
ساختار شکست: نقشه جانمایی پیشنهادی کارفرما
۱۴۰۳/۰۵/۱۱
وظیفه : طراحی ۰۲:۰۴
ساختار شکست: جلسه حضوری بررسی طراحی اولیه-محرابی،زینل پور،دکتر کریمی و دکتر توسلی
۱۴۰۳/۰۵/۱۵
وظیفه : اجرا ۱۸:۳۸
ساختار شکست: تخمین اجرا
۱۴۰۳/۰۶/۲۵
وظیفه : اجرا ۱۵:۲۵
ساختار شکست: عقد قرارداد اجرا

تصاویر پیشرفت پروژه