مشخصات پروژه

نام پروژه شرکت حمل و نقل پردیس ترابر
مدل پروژه
تاریخ شروع ۱۴۰۳/۰۶/۲۷
تاریخ پایان (تقریبی) ۱۴۰۳/۱۰/۳۰
تاریخ پایان (واقعی) ۱۴۰۳/۰۸/۲۲
کدپستی -
آدرس استان هرمزگان، بندرعباس، اسلام آباد، بلوار پاسداران
توضیحات -
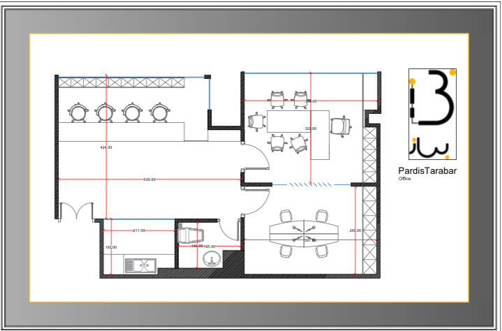
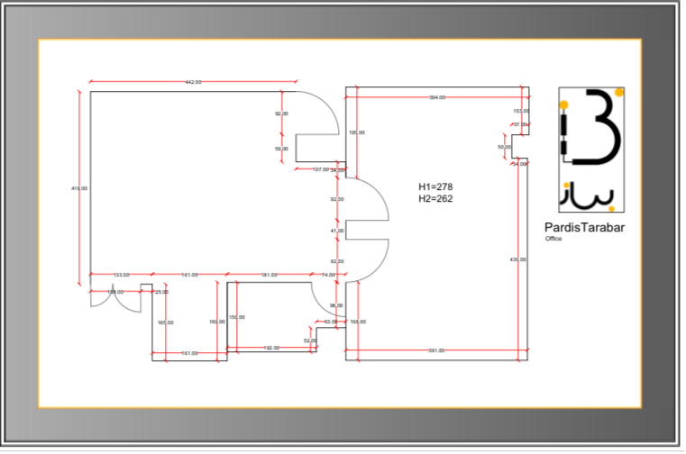
نقشه

جدول زمان بندی ساختارشکست

ردیف اسم وظیفه تاریخ شروع تاریخ پایان (تقریبی) تاریخ پایان (واقعی)
1 بازدید و طراحی ۱۴۰۳/۰۶/۲۷ ۱۴۰۳/۰۷/۳۰ ۱۴۰۳/۰۸/۱۵
2 اجرا ۱۴۰۳/۰۸/۱۵ ۱۴۰۳/۱۰/۳۰ ۱۴۰۳/۰۸/۲۲

نمودار زمانی وظایف

نمودار زمانی وظایف

وزن وظیفه ها

ردیف اسم وظیفه وزن (بر اساس ساختارشکست) وزن (بر اساس مبلغ) میانگین وزنی وظایف
1 بازدید و طراحی 75.0 0 37.5
2 اجرا 25.0 0 12.5

نمودار وزن وظیفه ها

نمودار وزن وظیفه ها

درصد پیشرفت پروژه

ردیف اسم وظیفه تاریخ شروع تاریخ پایان (تقریبی) تاریخ پایان (واقعی) درصد انجام شده(واقعی) انحراف از معیار
1 بازدید و طراحی ۱۴۰۳/۰۶/۲۷ ۱۴۰۳/۰۷/۳۰ ۱۴۰۳/۰۸/۱۵ 100.0

-33.33

2 اجرا ۱۴۰۳/۰۸/۱۵ ۱۴۰۳/۱۰/۳۰ ۱۴۰۳/۰۸/۲۲ 100.0 -

اهم فعالیت های انجام شده

۱۴۰۳/۰۶/۲۷
وظیفه : بازدید و طراحی ۱۴:۲۸
ساختار شکست: بازدید و برداشت پلان
۱۴۰۳/۰۷/۰۱
وظیفه : بازدید و طراحی ۱۸:۵۷
ساختار شکست: ارسال پرسشنامه طراحی
۱۴۰۳/۰۸/۱۵
وظیفه : بازدید و طراحی ۱۷:۳۲
ساختار شکست: تایید طرح نهایی
۱۴۰۳/۰۸/۲۲
وظیفه : اجرا ۱۲:۱۲
ساختار شکست: تخمین اجرا

تصاویر پیشرفت پروژه