مشخصات پروژه

نام پروژه مطب دندانپزشکی دکتر حدیث انصاری
مدل پروژه ساخت و ساز و عمرانی
تاریخ شروع ۱۴۰۳/۰۳/۰۲
تاریخ پایان (تقریبی) ۱۴۰۳/۰۹/۳۰
تاریخ پایان (واقعی) ۱۴۰۳/۱۰/۱۳
کدپستی -
آدرس استان هرمزگان، بندرعباس، هفتصد واحدی، بلوار شهابی پور، رسالت شمالی
توضیحات گروه مهندسی MZ(طراحی تا اجرا)
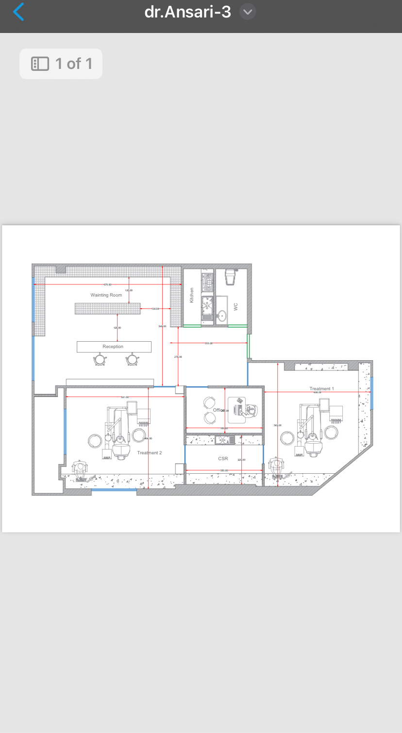
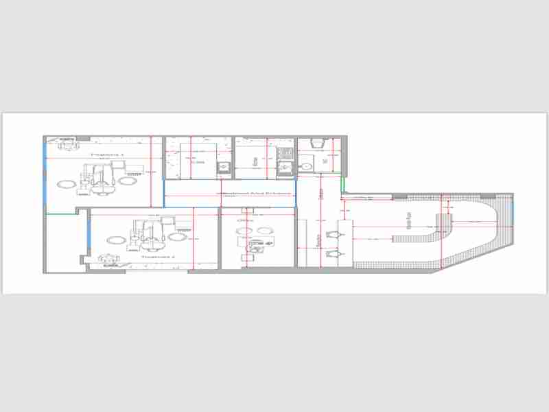
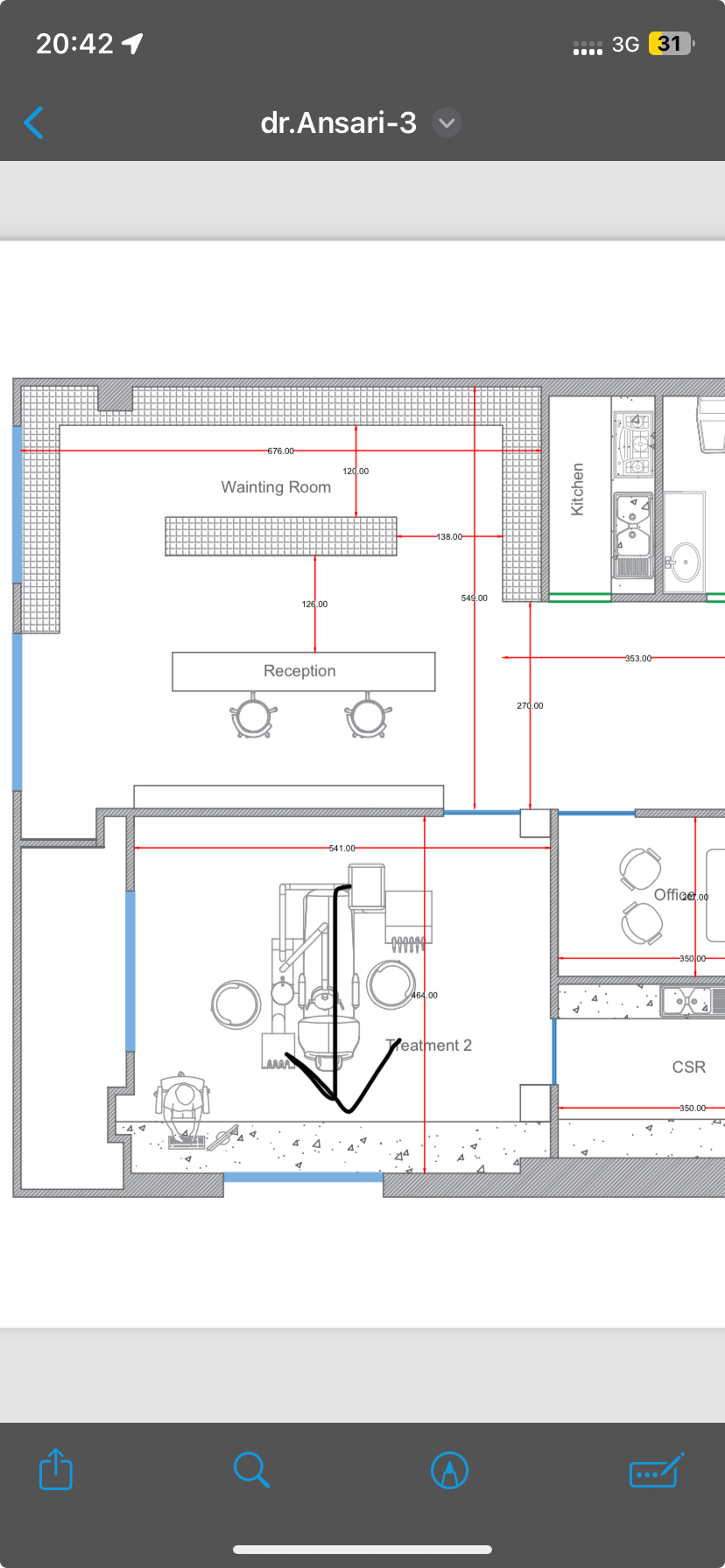
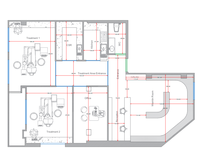
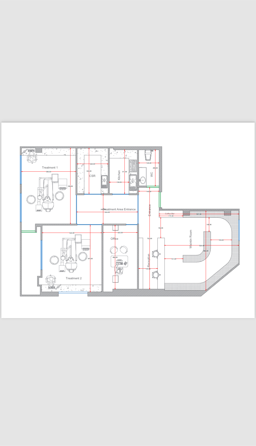
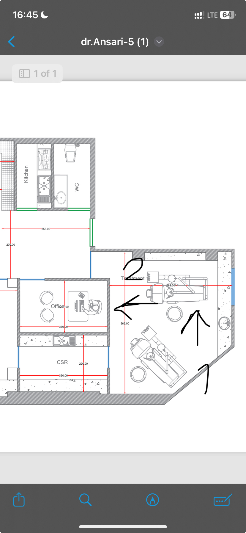
نقشه

جدول زمان بندی ساختارشکست

ردیف اسم وظیفه تاریخ شروع تاریخ پایان (تقریبی) تاریخ پایان (واقعی)
1 صورتحساب پیمان ۱۴۰۳/۰۳/۰۴ ۱۴۰۳/۰۸/۳۰ ۱۴۰۳/۱۰/۱۳
2 طراحی ۱۴۰۳/۰۳/۰۶ ۱۴۰۳/۰۴/۲۹ ۱۴۰۳/۰۴/۲۷
3 آیتم های اجرایی ۱۴۰۳/۰۵/۰۱ ۱۴۰۳/۰۹/۳۰ ۱۴۰۳/۱۰/۱۳
4 آیتم های خرید ۱۴۰۳/۰۵/۰۱ ۱۴۰۳/۰۹/۳۰ ۱۴۰۳/۱۰/۱۳

نمودار زمانی وظایف

نمودار زمانی وظایف

وزن وظیفه ها

ردیف اسم وظیفه وزن (بر اساس ساختارشکست) وزن (بر اساس مبلغ) میانگین وزنی وظایف
1 صورتحساب پیمان 6.94 0 3.47
2 طراحی 19.44 0 9.72
3 آیتم های اجرایی 56.94 50.0 53.47
4 آیتم های خرید 16.67 50.0 33.34

نمودار وزن وظیفه ها

نمودار وزن وظیفه ها

درصد پیشرفت پروژه

ردیف اسم وظیفه تاریخ شروع تاریخ پایان (تقریبی) تاریخ پایان (واقعی) درصد انجام شده(واقعی) انحراف از معیار
1 صورتحساب پیمان ۱۴۰۳/۰۳/۰۴ ۱۴۰۳/۰۸/۳۰ ۱۴۰۳/۱۰/۱۳ 100.0

-20.0

2 طراحی ۱۴۰۳/۰۳/۰۶ ۱۴۰۳/۰۴/۲۹ ۱۴۰۳/۰۴/۲۷ 100.0 -
3 آیتم های اجرایی ۱۴۰۳/۰۵/۰۱ ۱۴۰۳/۰۹/۳۰ ۱۴۰۳/۱۰/۱۳ 100.0

-39.02

4 آیتم های خرید ۱۴۰۳/۰۵/۰۱ ۱۴۰۳/۰۹/۳۰ ۱۴۰۳/۱۰/۱۳ 100.0

-25.0

اهم فعالیت های انجام شده

۱۴۰۳/۰۳/۰۴
وظیفه : صورتحساب پیمان ۱۹:۰۷
ساختار شکست: بازدید۱-محرابی و زینل پور
۱۴۰۳/۰۳/۰۶
وظیفه : طراحی ۱۷:۳۱
ساختار شکست: برداشت پلان-زینل پور-عباس پور
وظیفه : طراحی ۱۷:۳۱
ساختار شکست: ایجاد گروه واتس اپ و ارسال اطلاعات و پرسشنامه
۱۴۰۳/۰۳/۱۳
وظیفه : طراحی ۱۲:۰۰
ساختار شکست: عقد قرارداد طراحی
وظیفه : طراحی ۲۲:۳۱
ساختار شکست: ارسال پلان اولیه
وظیفه : طراحی ۲۲:۳۱
ساختار شکست: ارسال پلان جانمایی پیشنهادی
۱۴۰۳/۰۳/۱۴
وظیفه : طراحی ۱۳:۲۱
ساختار شکست: ارسال پلان جانمایی دوم(تغییر سایز اتاق های درمان)
وظیفه : طراحی ۱۳:۲۱
ساختار شکست: ارسال پلان جانمایی سوم(تغییر جانمایی اتاق های درمان)
۱۴۰۳/۰۳/۱۷
وظیفه : طراحی ۲۰:۵۲
ساختار شکست: بازدید مهندس حقدوست زیرساخت تاسیسات (دکتر انصاری و زینل پور)
۱۴۰۳/۰۳/۱۹
وظیفه : طراحی ۲۲:۵۲
ساختار شکست: ارسال پلان جانمایی چهارم
وظیفه : طراحی ۲۲:۵۲
ساختار شکست: ارسال پلان جانمایی ششم 
وظیفه : طراحی ۲۲:۵۲
ساختار شکست: ارسال پلان جانمایی پنجم 
وظیفه : طراحی ۲۲:۵۲
ساختار شکست: ارسال پلان جانمایی هفتم-تایید پلان نهایی-دکتر انصاری
۱۴۰۳/۰۴/۰۳
وظیفه : طراحی ۱۸:۲۰
ساختار شکست: ارسال طرح های سه بعدی اولیه 
۱۴۰۳/۰۴/۲۶
وظیفه : آیتم های اجرایی ۱۸:۰۰
ساختار شکست: جلسه عقد قرارداد ۲۷ تیر ساعت ۱۸ -جناب انصاری-زینل پور-محرابی
۱۴۰۳/۰۴/۲۷
وظیفه : طراحی ۱۷:۲۷
ساختار شکست: دریافت طرح نهایی
۱۴۰۳/۰۴/۳۰
وظیفه : آیتم های اجرایی ۲۳:۳۴
ساختار شکست: تحویل کلید-جناب انصاری-زینل پور
۱۴۰۳/۰۵/۰۱
وظیفه : آیتم های اجرایی ۱۵:۳۰
ساختار شکست: تخریب سقف کناف قدیمی-بی نیاز-هماهنگی زینل پور
۱۴۰۳/۰۵/۰۴
وظیفه : آیتم های اجرایی ۲۱:۰۱
ساختار شکست: گونی کردن و تخلیه نخاله
۱۴۰۳/۰۵/۰۹
وظیفه : آیتم های اجرایی ۰۱:۵۲
ساختار شکست: نظارت بر اجرای تاسیسات و نصب یونیت ها- مهندس حقدوست
وظیفه : آیتم های اجرایی ۰۱:۵۲
ساختار شکست: تیم تاسیسات الکترونیکی-مهندس ملایی
وظیفه : آیتم های اجرایی ۲۳:۳۵
ساختار شکست: تیم درب های سکوریت و سکوریت بازشونده بالکن--محمد پور
۱۴۰۳/۰۵/۱۱
وظیفه : آیتم های اجرایی ۰۲:۰۶
ساختار شکست: تیم تاسیسات لوله کشی -بازگیر
۱۴۰۳/۰۶/۰۱
وظیفه : آیتم های خرید ۱۶:۰۷
ساختار شکست: خرید لوله و اتصالات 
وظیفه : آیتم های خرید ۱۶:۰۷
ساختار شکست: خرید سرامیک اسلب 1.20*2.80 و سرامیک بین کابینتی ۶۰*۱۲۰
وظیفه : آیتم های خرید ۱۶:۰۷
ساختار شکست: خرید لوازم برقکاری و نورپردازی داخلی و بیرونی
وظیفه : آیتم های خرید ۱۶:۰۷
ساختار شکست:  استراکچر وال هنگ و کف شور و شیر آلات
وظیفه : آیتم های خرید ۱۶:۰۷
ساختار شکست: خرید گچبرک کناف و سازه
وظیفه : آیتم های خرید ۱۶:۲۶
ساختار شکست: دوربین و اینترنت
وظیفه : آیتم های اجرایی ۱۶:۳۹
ساختار شکست: وانت ، حمل متریال، حمل و نقل و تخلیه نخاله
وظیفه : آیتم های خرید ۱۶:۵۷
ساختار شکست: مصالح بنایی
۱۴۰۳/۰۷/۰۸
وظیفه : آیتم های خرید ۱۶:۵۵
ساختار شکست: تابلو برق صنعتی
وظیفه : آیتم های خرید ۱۶:۵۵
ساختار شکست: چسب  و یراق سرامیک کاری
وظیفه : آیتم های اجرایی ۱۷:۱۴
ساختار شکست: تیم اجرای کناف-عباس بی نیاز
وظیفه : آیتم های اجرایی ۱۷:۱۴
ساختار شکست: تیم گچ کاری دیواره ها و برشکاری ها
وظیفه : آیتم های اجرایی ۱۷:۱۵
ساختار شکست: تیم جوشکاری-فرم درب ها و سایه بان--حیدری
وظیفه : آیتم های اجرایی ۱۷:۱۵
ساختار شکست: تیم سرامیک کاری-کف سازی-سرامیک-جناب طوسی
وظیفه : آیتم های اجرایی ۱۷:۱۵
ساختار شکست: تیم نصب شیر آلات و وال هنگ-محمدی
وظیفه : آیتم های اجرایی ۱۷:۱۵
ساختار شکست: تیم تاسیسات سرمایشی-مهندس بیانی
۱۴۰۳/۰۷/۰۹
وظیفه : صورتحساب پیمان ۱۲:۵۵
ساختار شکست: صورتحساب پیمان ۱-یکم شهریور ۱۴۰۳
وظیفه : صورتحساب پیمان ۱۲:۵۵
ساختار شکست: صورتحساب پیمان ۲-نهم مهر ۱۴۰۳
۱۴۰۳/۰۸/۰۹
وظیفه : صورتحساب پیمان ۱۷:۲۸
ساختار شکست: صورتحساب پیمان ۳-نهم آبان ۱۴۰۳
وظیفه : آیتم های اجرایی ۱۷:۲۹
ساختار شکست: تیم نقاشی-جناب رضایی-نقاشی درب ورودی و راه پله
وظیفه : آیتم های اجرایی ۱۷:۲۹
ساختار شکست: عایق کاری-سرویس-آبدارخانه-خوارزمی
وظیفه : آیتم های اجرایی ۱۷:۳۰
ساختار شکست: نظافت و صفرشویی دوره ای
وظیفه : آیتم های اجرایی ۱۷:۳۰
ساختار شکست: اتمام سرامیک کاری کف اسلب برند فاوانیا-طوسی
وظیفه : آیتم های اجرایی ۱۷:۳۱
ساختار شکست: سفارش ساخت درب ورودی و سایه بان پشت بام-گروه ثامن-احمدی
وظیفه : آیتم های اجرایی ۱۷:۳۱
ساختار شکست: خرید و نصب درب داخلی-ضد سرقت-قاسمی نژاد
۱۴۰۳/۰۸/۱۰
وظیفه : آیتم های اجرایی ۱۲:۳۰
ساختار شکست: عایق کاری-سرویس و پشت بام-ایزوگام
وظیفه : آیتم های اجرایی ۱۲:۳۰
ساختار شکست: آیفون ساختمان-سیماران-سلجوقی
وظیفه : آیتم های اجرایی ۱۴:۲۹
ساختار شکست: درب ورودی ساختمان
وظیفه : آیتم های اجرایی ۱۴:۳۲
ساختار شکست: اجرای سایه بان مخازن و کولر ها
۱۴۰۳/۱۰/۰۱
وظیفه : آیتم های اجرایی ۲۳:۱۴
ساختار شکست: تیم نورپردازی سفارشی-جناب تاجیک
وظیفه : آیتم های اجرایی ۲۳:۱۴
ساختار شکست: تیم تابلو و لوگو های دیواری-حیدری
وظیفه : آیتم های اجرایی ۲۳:۱۴
ساختار شکست: تیم دوربین-اعلام حریق-دزدگیر-مهندس شجاعی
وظیفه : آیتم های اجرایی ۲۳:۱۵
ساختار شکست: مونتاز و ساخت مصنوعات چوب-کابینت ها-پیشخوان-کافه بار-آبدارخانه-قریشی
وظیفه : آیتم های خرید ۲۳:۱۵
ساختار شکست: مصنوعات چوب و یراق آلات
وظیفه : آیتم های اجرایی ۲۳:۵۰
ساختار شکست: سفارش درب سرویس و سرویس و آبدارخانه-برنا پنجره-نادری
۱۴۰۳/۱۰/۱۲
وظیفه : آیتم های اجرایی ۰۸:۴۲
ساختار شکست: سیستم صوتی و دستگیره هوشمند درب ورودی-خاطف
وظیفه : آیتم های اجرایی ۰۸:۴۲
ساختار شکست: کامپیوتر پذیرش ، پزشک و گرافی
وظیفه : آیتم های اجرایی ۰۸:۴۲
ساختار شکست: دستگاه تصفیه آب
وظیفه : آیتم های اجرایی ۰۸:۴۲
ساختار شکست: سطل زباله
وظیفه : آیتم های اجرایی ۰۸:۴۲
ساختار شکست: آینه های درمان
وظیفه : آیتم های اجرایی ۱۰:۳۴
ساختار شکست: تابلو بالا ساختمان،تابلو های داخلی و راهنما طبقات
وظیفه : آیتم های اجرایی ۲۱:۴۷
ساختار شکست: سنگ کوارتز-کارن
وظیفه : آیتم های اجرایی ۲۱:۵۱
ساختار شکست: برچسب و استیکر محافظ
وظیفه : آیتم های اجرایی ۲۱:۵۱
ساختار شکست: پرده میلاد
وظیفه : آیتم های اجرایی ۲۱:۵۶
ساختار شکست: سقف کشسان اتاق پزشک
وظیفه : آیتم های خرید ۲۲:۴۲
ساختار شکست: کارت ویزیت،سر نسخه و پرونده بیمار و لوازم مصرفی
۱۴۰۳/۱۰/۱۳
وظیفه : آیتم های اجرایی ۰۱:۴۳
ساختار شکست: شیشه بر-باقر زاده-محمد پور
وظیفه : آیتم های خرید ۰۳:۳۹
ساختار شکست: لپ تاپ،مینی کیس،مانیتور،آل این وان و شبکه و صندلی                                                  
وظیفه : صورتحساب پیمان ۰۵:۵۱
ساختار شکست: صورتحساب پیمان ۴-دوازدهم دی ۱۴۰۳

تصاویر پیشرفت پروژه